Land Between 18 and 22 Tanfield, Tanfield Off Cowgate, Mauchline, East Ayrshire, KA5 5AB

  • Unconditional Online Sale

BUY IT NOW!!! - ***LAND WITH PLANNING PERMISSION FOR TWO STOREY DWELLING IN HISTORIC MAUCHLIN, PRIME OPPORTUNITY***PLOT PRESENTS AN EXCELLENT OPPORTUNITY FOR DEVELOPERS LOOKING TO BUILD A CUSTOM RESIDENCE***IDEAL INVESTMENT OPPORTUNITY***

Description

BUY IT NOW!!! - ***LAND WITH PLANNING PERMISSION FOR TWO STOREY DWELLING IN HISTORIC MAUCHLIN, PRIME OPPORTUNITY***PLOT PRESENTS AN EXCELLENT OPPORTUNITY FOR DEVELOPERS LOOKING TO BUILD A CUSTOM RESIDENCE***IDEAL INVESTMENT OPPORTUNITY***

***We are delighted to present a unique opportunity to acquire a parcel of land situated between 18 and 22 Tanfield, off Cowgate, in the charming town of Mauchline, East Ayrshire, KA5 5AB.***

***Planning permission granted for two story dwelling / 3 bedrooms.***

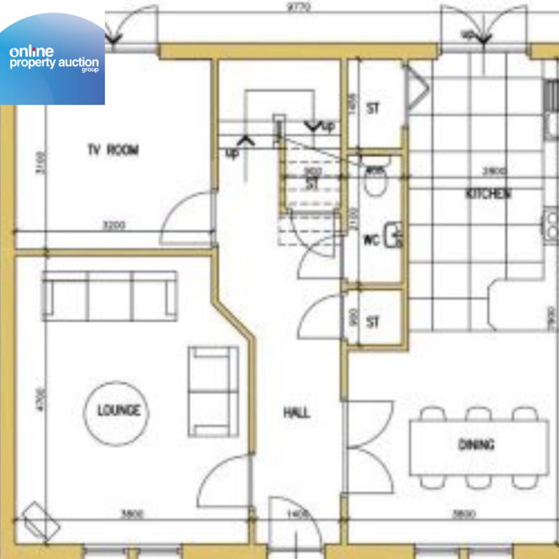
• The two storey dwelling has:

GROUND FLOOR - lounge, dining room, TV room, kitchen
FIRST FLOOR - three bedrooms (bedroom 1 has an en-suite), bathroom

***RECENT RESIDENTIAL NEARBY PROPERTY SALES***
(3 bedroom) 30, Gregory Street, Mauchline, KA5 6BY - £155k (Mar'24)
(3 bedroom) 18, Loan, Mauchline, KA5 6AN - £135k (Feb'24)
(3 bedroom) 93, Mary Morrison Drive, Mauchline, KA5 6AR - £112k (Mar'24)

***Mauchline is a town and civil parish in East Ayrshire, Scotland. Mauchline has a population of 3,807 ( as of 2022).***The town lies by the Glasgow and South Western Railway line, 8 miles (13 kilometres) east-southeast of Kilmarnock and 11 miles (18 km) northeast of Ayr.***It is situated on a gentle slope about one mile (1.5 kilometres) from the River Ayr, which flows through the south of the parish of Mauchline.***

***Historical Significance***: Mauchline is renowned for its rich history, notably as the residence of Scotland's national poet, Robert Burns. The town boasts several historical sites, including the Burns House Museum and the National Burns Memorial.

***Community and Amenities*** - The town provides a range of amenities, including local shops, schools, and recreational facilities. Mauchline Primary School is conveniently located approximately 400 yards from the site.

***GOOD TRANSPORT LINKS*** - Close to the A76 and B743 roads. Less than 10 miles drive away from Kilmarnock.

BUY IT NOW PRICE: £18,000

To view legal documents for all properties, and to register for our online auctions please visit our website.

Purchases are subject to a Buyer’s Premium. There may also be additional fees on certain properties. Please refer to the Articles of Roup / Special Conditions in the Legal pack to confirm.

Key Feature 1

LAND WITH PLANNING PERMISSION FOR TWO STOREY DWELLING IN HISTORIC MAUCHLIN, PRIME OPPORTUNITY

Key Feature 2

PLOT PRESENTS AN EXCELLENT OPPORTUNITY FOR DEVELOPERS LOOKING TO BUILD A CUSTOM RESIDENCE

Key Feature 3

IDEAL INVESTMENT OPPORTUNITY

* Generally speaking Guide Prices are provided as an indication of each seller's minimum expectation, i.e. 'The Reserve'. They are not necessarily figures which a property will sell for and may change at any time prior to the auction. Virtually every property will be offered subject to a Reserve (a figure below which the Auctioneer cannot sell the property during the auction) which we expect will be set within the Guide Range or no more than 10% above a single figure Guide.

Loading the bidding panel...

Submit Offer Now

Agreement Documents

Make an Enquiry

Submit an enquiry and someone will be in contact shortly.

 
*  
*  
*
*
*

Share