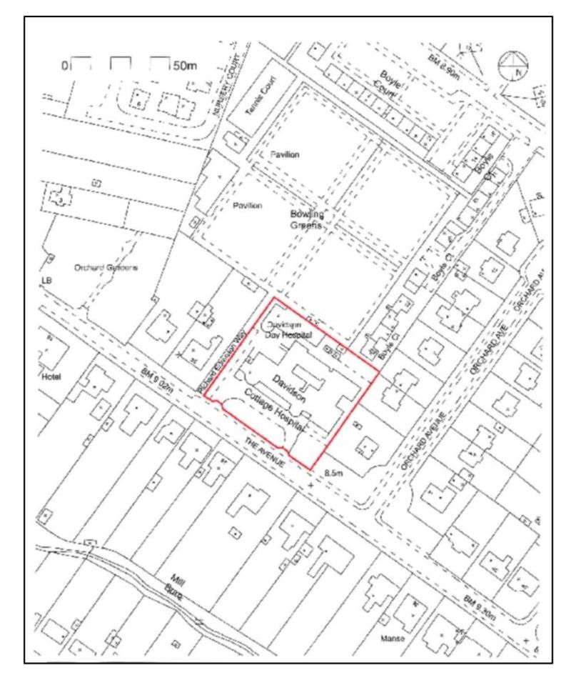
The Davidson Cottage Hospital, 39 The Avenue, Girvan, Ayrshire, KA26 9DS

  • Unconditional Online Auction Sale
  • Guide Price* : £185,000

FOR SALE BY ONLINE AUCTION WEDNESDAY 21st OF MAY 2025 AT 9.00AM - ***RARE OPPORTUNITY TO ACQUIRE 2 VERSATILE PROPERTIES PROMINENTLY LOCATED WITHIN THE PICTURESQUE COASTAL TOWN OF GIRVAN***STANDALONE MANSION HOUSE COTTAGE & SEPERATE 3 BEDROOM HOUSE OFFERING UNIQUE BLEND OF HISTORIC CHARM AND DEVELOPMENT POTENTIAL***HAS POTENTIAL FOR A VARIETY OF COMMERCIAL/RESIDENTIAL USES***

Description

FOR SALE BY ONLINE AUCTION WEDNESDAY 21st OF MAY 2025 AT 9.00AM - ***RARE OPPORTUNITY TO ACQUIRE 2 VERSATILE PROPERTIES PROMINENTLY LOCATED WITHIN THE PICTURESQUE COASTAL TOWN OF GIRVAN***STANDALONE MANSION HOUSE COTTAGE & SEPERATE 3 BEDROOM HOUSE OFFERING UNIQUE BLEND OF HISTORIC CHARM AND DEVELOPMENT POTENTIAL***HAS POTENTIAL FOR A VARIETY OF COMMERCIAL/RESIDENTIAL USES***
***Amazing opportunity to acquire a versatile property located in a prominent position within the picturesque coastal town of Girvan. Formerly the Davidson Hospital complex, this mansion house offers a unique blend of historic charm and development potential, ideal for a variety of commercial uses including healthcare, office space, wellness centre or boutique accommodation. This property is prime for a development project. (subject to planning consents).***

At the rear of the property is a stand alone 3 bedroom house which would be perfect for renovation.

Planning was granted but has since lapsed. See legal pack for details.

***PROPERTY HIGHLIGHTS***

- Prime location within central Girvan, a short distance from the town centre and local amenities.

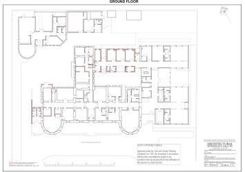
- Site area 0.4 Hectares (0.98 Acres) (4,000 square metres)
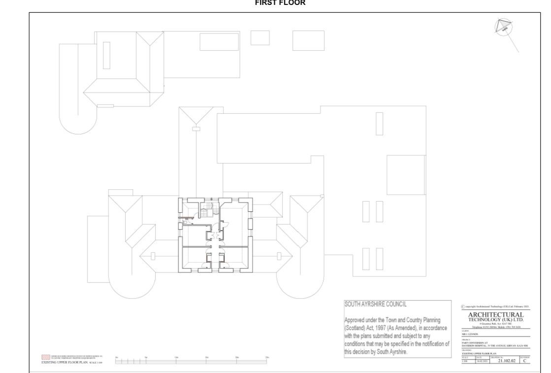
- Gross internal area 1,315 sq.m (14154 sq. ft.)

- Detached single-storey building with flexible internal layout.

- Detached 3 bedroom house within the grounds of the mansion house cottage

- Generous site area with potential for redevelopment or expansion at 1315 sq. metres (14,154 square feet)

- Suitable for a wide range of commercial, healthcare, or residential conversion uses (STP).

- Secure grounds with dedicated parking and garden areas

- Excellent transport links via A77 and local railway station

***This is an ideal investment opportunity for developers, business owners or investors seeking 2 distinctive properties in a scenic and accessible part of South Ayrshire.***

***RECENT NEARBY RESIDENTIAL PROPERTY SALES***
- 43, The Avenue, Girvan, Ayrshire, KA26 9DS - 4 bedroom - SOLD AUG'24 - £350,000
- 29, Norway Cottage, Harbour Road, Maidens, Girvan, Ayrshire, KA26 9NR - SOLD DEC'24 - £272,250
- 8, The Avenue, Girvan, Ayrshire, KA26 9DS - 3 bedroom - SOLD SEP'24 - £235,500

***The property is based in Girvan, nestled along the stunning Ayrshire coastline in Scotland, offers an enticing blend of natural beauty, rich history, and economic potential. Its picturesque vistas of the Firth of Clyde and the iconic Ailsa Craig, coupled with a strong sense of community, make it an appealing place.***With a history dating back to ancient times, Girvan boasts historic landmarks like Turnberry Castle and the Girvan Old Stumpy Lighthouse, adding to its charm.***The town's diverse economy, supported by industries such as fishing, agriculture, and tourism, presents promising opportunities for investment.***Residents enjoy a balanced lifestyle, with tranquil surroundings, convenient urban amenities, and access to excellent schools and healthcare.***Girvan's property market, offering a range of options at relatively affordable prices, further enhances its appeal as a destination for investing in***

GUIDE PRICE: £185,000

To view legal documents for all properties, and to register for our online auctions please visit our website.

Purchases are subject to a Buyer’s Premium. There may also be additional fees on certain properties. Please refer to the Articles of Roup / Special Conditions in the Legal pack to confirm.

Key Feature 1

RARE OPPORTUNITY TO ACQUIRE 2 VERSATILE PROPERTIES

Key Feature 2

STANDALONE MANSION HOUSE COTTAGE & SEPERATE 3 BEDROOM HOUSE OFFERING UNIQUE BLEND OF HISTORIC CHARM AND DEVELOPMENT POTENTIAL

Key Feature 3

PRIME DEVELOPMENT OPPORTUNITY

* Generally speaking Guide Prices are provided as an indication of each seller's minimum expectation, i.e. 'The Reserve'. They are not necessarily figures which a property will sell for and may change at any time prior to the auction. Virtually every property will be offered subject to a Reserve (a figure below which the Auctioneer cannot sell the property during the auction) which we expect will be set within the Guide Range or no more than 10% above a single figure Guide.

Loading the bidding panel...

Submit Offer Now

Agreement Documents

Make an Enquiry

Submit an enquiry and someone will be in contact shortly.

 
*  
*  
*
*
*

Share