55 Titchfield Street, Kilmarnock, East Ayrshire, KA1 1QS

  • Unconditional Online Auction Sale
  • Guide Price* : £59,000

HUGE PRICE DROP: WAS £79,000 NOW ONLY £59,000***FOR SALE BY ONLINE AUCTION THURSDAY 21ST SEPTEMBER 2023 AT 9.00AM. Entire first and second floor of tenement in Kilmarnock. Previously converted into office units, with planning permission to convert to 2 X 1 bedroom and 2 x 2 bedroom flats. Incredible development opportunity.

Description

FOR SALE BY ONLINE AUCTION THURSDAY 21ST SEPTEMBER 2023 AT 9.00AM. Entire first and second floor of tenement in Kilmarnock. Previously converted into office units, with planning permission to convert to 2 X 1 bedroom and 2 x 2 bedroom flats. Incredible development opportunity.

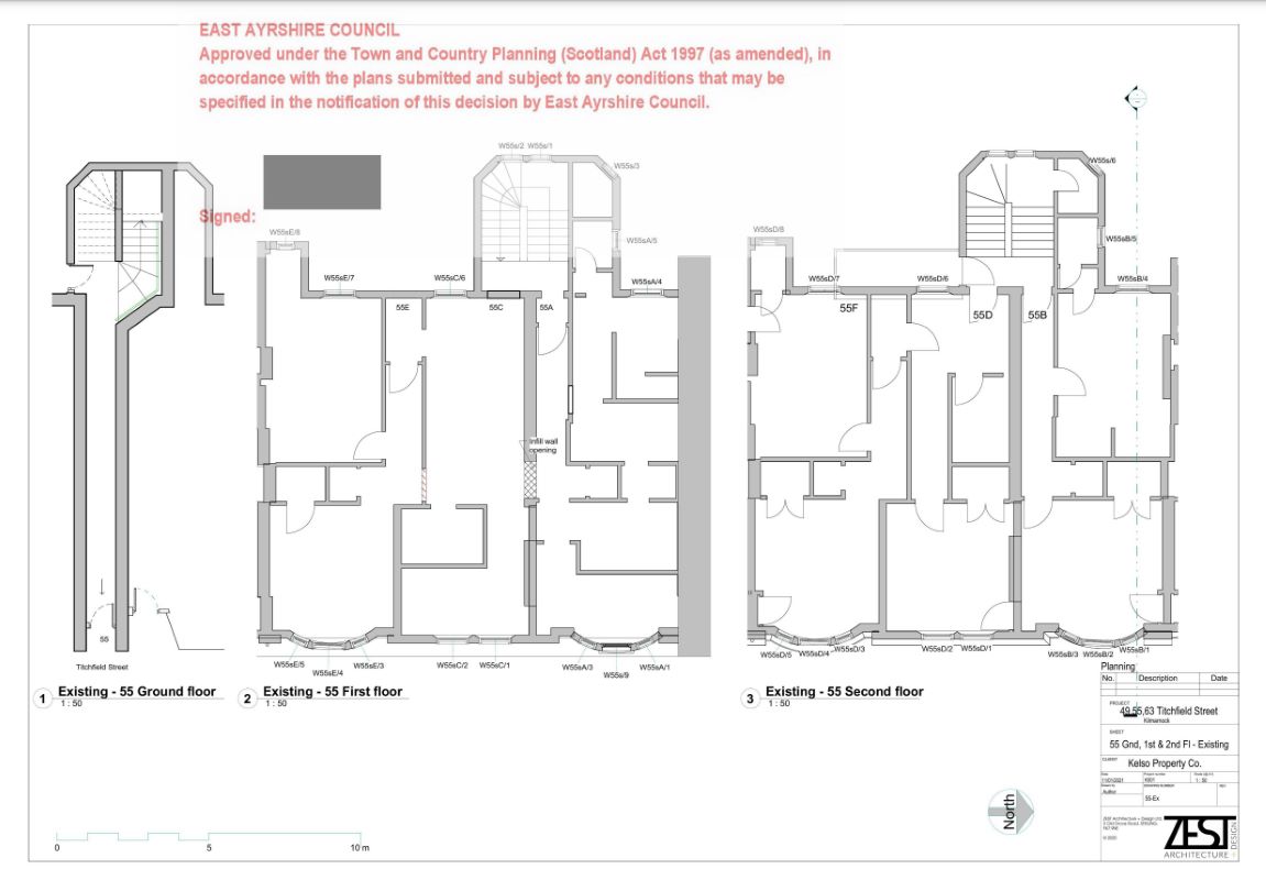
The property is comprised of two floors, made up of six office units.

Planning permission can be found on the East Ayrshire Council Planning Portal here: https://eplanning.east-ayrshire.gov.uk/online/applicationDetails.do?activeTab=documents&keyVal=R2YUDOGFJUP00
21/0819/PP

Flat 55a and 55b would be comprised of an entrance hallway, large bedroom with storage cupboard, shower room with toilet, and kitchen/lounge.

Flat 55c and 55d would be comprised of L-shaped hallway with storage cupboard, two large bedrooms each with additional storage cupboard, shower room with toilet, kitchen, and lounge.

Potential end-market rental income of 1 bedroom flat in the region of £450pcm, and 2 bedroom flat in the region of £650 - providing £2,200pcm with all 4 units converted and occupied.

Nearby Sales include:

- 104 Titchfield Street - sold for £58,000 Apr 23
- 27 Titchfield Street - sold for £68,000 May 22
- 1 Titchfield Street - sold for £80,200 Mar 22
- 25 Titchfield Street - sold for £110,000 Jul 20

Kilmarnock is the administrative district for East Ayrshire and is one of Scotland’s most populated districts. The town is well serviced with primary, secondary & further education facilities. Transport links are fantastic with Train Station & The upgraded M77 Motorway linking both Glasgow City Centre & Prestwick International Airport with the local areas making Kilmarnock a popular commuter district. The town has a population of roughly 46,770 with a strong tenant base. With the nearby Kilmarnock campus of Ayrshire College and the University of the West of Scotland in the neighbouring town of Ayr, there will be plenty of students looking for accommodation.

To view legal documents relating to this property please visit our website.

Purchases are subject to a Buyer’s Premium. There may also be additional fees on certain properties. Please refer to the Articles of Roup/Special Conditions in the Legal pack to confirm.

All prices quoted are exclusive of VAT.

Key Feature 1

Entire First and Second Floor of Tenement Building in Kilmarnock

Key Feature 2

Planning Permission Granted to Revert to Residential

Key Feature 3

Ability to Turn into 2 One Bedroom and 2 Two Bedroom Flats

* Generally speaking Guide Prices are provided as an indication of each seller's minimum expectation, i.e. 'The Reserve'. They are not necessarily figures which a property will sell for and may change at any time prior to the auction. Virtually every property will be offered subject to a Reserve (a figure below which the Auctioneer cannot sell the property during the auction) which we expect will be set within the Guide Range or no more than 10% above a single figure Guide.

Loading the bidding panel...

Submit Offer Now

Agreement Documents

Related Documents

Virtual Tour

Virtual Tour - 55 Titchfield Street, Kilmarnock

Make an Enquiry

Submit an enquiry and someone will be in contact shortly.

 
*  
*  
*
*
*

Share